Dom nr 4

parter:

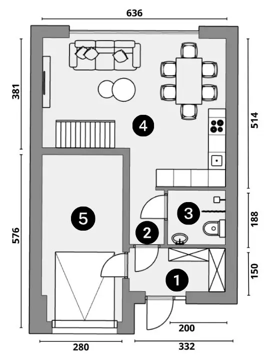
wiatrołap

4,78 m2

komunikacja

2,23 m2

WC

3,60 m2

salon + aneks

25,68 m2

pom. gosp.

15,19 m2


RAZEM:

51,48 m2

piętro:

komunikacja

4,81 m2

pokój

11,50 m2

pokój

9,50 m2

łazienka

4,87 m2

garderoba

4,36 m2

sypialnia

12,04 m2


RAZEM:

47,08 m2

Pobierz kartę domu

parter:

Image

piętro:

Image

parter - Układ funkcjonalny

Image

piętro - Układ funkcjonalny


Image

Wizualizacje inwestycji

Lokalizacja