Dom nr 3
parter:
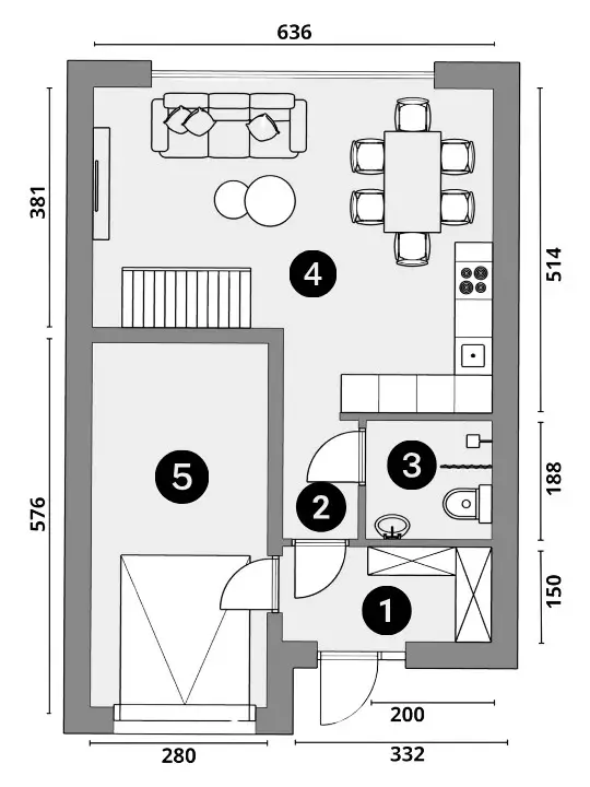
wiatrołap
4,78 m2
komunikacja
2,23 m2
WC
3,60 m2
salon + aneks
25,68 m2
pom. gosp.
15,97 m2
RAZEM:
52,26 m2
piętro:
komunikacja
4,81 m2
pokój
11,50 m2
pokój
9,50 m2
łazienka
4,87 m2
garderoba
4,36 m2
sypialnia
12,04 m2
RAZEM:
47,08 m2
Pobierz kartę domu
parter:

piętro:

parter - Układ funkcjonalny

piętro - Układ funkcjonalny












